ساختمانی با برچسب انرژی ++++ A (+تصاویر)
جالب است بدانید که الکتریسیته مورد نیاز برای کل ساختمان توسط پنل های خورشیدی تامین می شود. تکنولوژی چمن سقف نیز نفوذ و فیلتراسیون آب باران را تسهیل می کند.

موبنا؛ رکسانا دانیالی – به عقیده تیم معماری EVA، “شفافیت” عنصری اساسی در طراحی یک پروژه ساختمانی به شمار می رود. همانطور که در ادامه نیز مشاهده خواهید کرد، مجموعه ای شیشه ای با کاربری اداری توسط همین تیم در هلند ساخته شده است که عنصر نام برده را تمام و کمال به نمایش می گذارد. این نمای شیشه ای نه تنها چشم اندازی بی نظیر را در اختیار کارکنان قرار می دهد، بلکه نفوذ نور را نیز به حداکثر میزان ممکن افزایش خواهد داد.

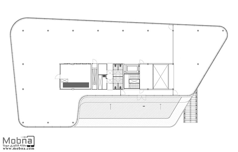
طبقه دوم ساختمان با مهارت بالایی طراحی شده است. طبقه فوقانی با نقشه منحنی شکل خود فضایی کافی را به منظور ایجاد یک باغ کوچک فراهم کرده است. جذابیت ورودی این طبقه با حضور باغچه ای زیبا، دو چندان خواهد شد. جالب است بدانید که الکتریسیته مورد نیاز برای کل ساختمان توسط پنل های خورشیدی تامین می شود.

تکنولوژی چمن سقف نیز نفوذ و فیلتراسیون آب باران را تسهیل می کند. واحدهای کنترلی میزان CO2 هوا و همچنین آشکارسازهای روشنایی، این اطمینان را می دهند که هدر رفت انرژی به حداقل خود برسد. ساختمان اداری مورد بحث مجهز به برچسب انرژی A ++++ است و در صرفه جویی انرژی ۷۰ درصد بهتر از مقررات رسمی عمل می کند.

منبع: پول نیوز




















