طراحی خانه های کوچک کاسیتا! (+عکس)
مدیر عامل فعلی شرکت خانه سازی های کوچک به همراه تیمش در مجموعه ای به نام کاسیتا؛ خانه هایی با قابلیت حمل و نقل و تجهیزات کامل را ساخته اند.

موبنا،ناهید مصیبی – ایده این پروژه پس از یکسال زندگی در یک “سطل زباله محله” صرفا برای تجربه شرایط زندگی با امکانات و چالش های آن در یک فضای بسیار کوچک به ذهن او راه یافت! و پس از آن با راه حلی برای افزایش قابلیت خانه های کوچک بازگشت.
مساحت کلی کاسیتا حدودا ۳۱ در ۱۲ فوت است که قابلیت نصب شدن روی منازل مسکونی، فضای کاری و محیط تجاری را دارد. همچنین در هر نقطه و زمینی می تواند نصب شود. این پروژه راه حلی کارآمد برای فضاهای کوچک با صرف هزینه اندک است که برای جمعیت رو به رشد و تغییر در شیوه زندگی امروزی بسیار مناسب است.

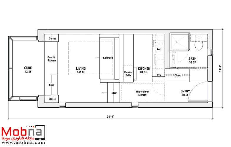
هر واحد شامل ملزومات یک خانه مانند اتاق خواب، حمام، اتاق نشیمن و آشپزخانه، و انباری است. بعلاوه در این مکعب نوعی طرح شیشه بکار رفته است که موجب ورود نور طبیعی به داخل و دید شما به بیرون می شود. هر بخشی از خانه برای به حداکثر رساندن بهره وری از فضا کارکرد مخصوص به خود را دارد. همچنین چون کاسیتا با اندازه بسیار کوچک ساخته شده به سادگی در کامیون قرار میگیرد و هر زمان که صاحبخانه بخواهد می تواند خانه را جابجا و در محل جدید مستقر کند. این کاسیتا ها قابلیت نصب شدن روی هم همانند یک مجتمع آپارتمانی را نیز دارند و تقریبا در هر موقعیت شهری می توان آن را اسکان داد.

در قسمت بالا و در طرفین پنجره های باریک و مستطیل شکل وجود دارد که باعث ورود نور طبیعی از بیرون به محیط داخل می شود. این پنجره ها عمدتا برای روشنایی حمام و آشپزخانه در نظر گرفته شده اند. همچنین از این قسمت مکعب شیشه ای در انتهای خانه به عنوان فضای ثانویه برای فعالیتهای مختلف می توان استفاده کرد. نیروی برق این واحدها نیز بطور مستقیم به هر شبکه اتصال می یابد، اما با انرژی های تجدید پذیر نیز می توان آن را تامین کرد که با بار الکتریکی ای که به درستی در این فضا طراحی شده است ایجاد می شود.
با روی هم گذاشتن این واحدهای مسکونی در محیط های درون شهری موقعیت مناسب تری را برای اسکان میتوانید بیابید.
همانطور که می بینید اتاق خواب دو منظوره طراحی شده است و به عنوان اتاق نشیمن نیز قابل استفاده است.
پنجره مکعبی شکل در یک سر خانه مقدار زیادی از نور طبیعی خانه و تهویه هوا ی منزل را فراهم می کند .

یک آشپزخانه کوچک اما امروزی تمام نیازهای پخت و پز شما را برآورده می کند.




















